Office To Let Southampton
PROPERTY ID: 134500
PROPERTY TYPE
Office
STATUS
Available
SIZE
1,122 sq.ft
Key Features
Property Details
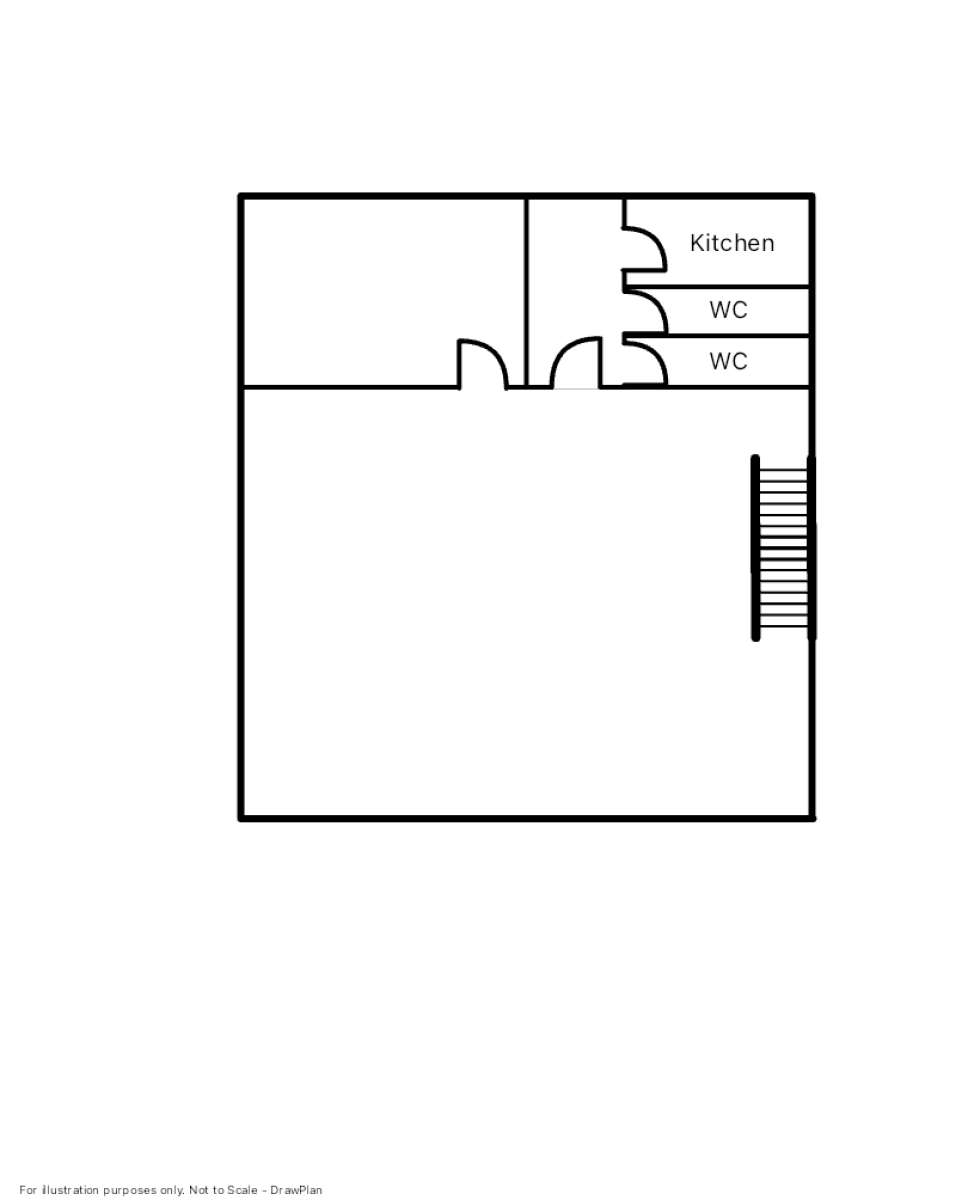
Net Internal Area - 1,122 sq.ft (104 sq.m)
East Street Is A Retail Pitch In Southampton Located Between High Street/above Bar Street And Queensway. The Continued Regeneration Of The Immediate Area, Including The Redevelopment Of The Former Bargate Centre And East Street Shopping Centre, Has Cemented East Street As A Well-positioned Retail Location With The Impending Sharp Increase Of Nearby Residents.
The Property Comprises First-floor Commercial Space And Benefits From Its Own Dedicated Access Point, Leading To Large Open Plan Space, With Separate Kitchen And Wc's.
Net Internal Area - 1,122 Sq.ft (104 Sq.m)
Rateable Value £10,000
Source - Voa.gov.uk
The 2024/2025 Small Multiplier Is 0.499 (49.9p Payable Per £1). This Determines What Business Rates Are Payable. All Parties Are Advised To Make Their Own Enquiries For Confirmation.
*if You Qualify As A 'small Business' You May Be Eligible For Substantial Relief In Connection With Business Rates Payable. We Advise All Parties Speak To The Local Authority In The First Instance For Confirmation.
Available By Way Of A New Full Repairing And Insuring Lease For A Term To Be Agreed At £12,000 Per Annum Exclusive Of Rates Vat (if Applicable) And All Other Outgoings.
Note: There Is To Be A Service Charge Levied To Cover Communal Costs
Note: It Is Understood Vat Is Not Payable On Rents.
Under The New Planning Regulations, We Believe The Current Permitted Use To Be Use Class 'e' Which Includes Uses Such As Retail, Professional Services, Café, Health Clinics, Indoor Recreation/sport And Office. All Parties Are Advised To Make Their Own Enquiries Of The Local Authority For Confirmation.
Asset Rating - D(90)
First Floor Commercial Unit Available


















































































































